Skip To Content

13316 Bellacoola Road

Soddy Daisy, TN 37379
  • $247,900
  • STATUS: Under Contract - Showing
  • ON SITE: 398 Days
  • MLS #: RTC2786684
Under Contract
UPDATED: 48 min ago
$247,900
  • 0
    BEDS
  • 0.97
    ACRES
  • 0
    BATHS
  • 0
    1/2 BATHS
Neighborhood:
Type:
Vacant Land / Lots
County:

Description

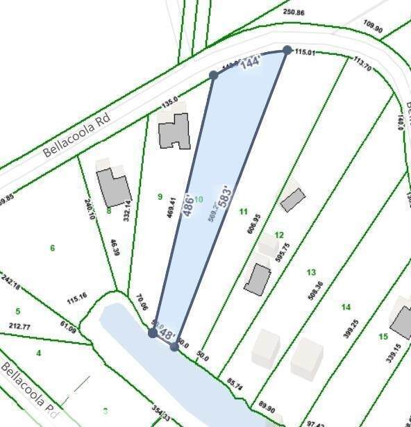
Last Lot in lake-front Harbor Haven now available. Already approved for at least a 3 Bedroom Home or more. 100' by 100' space already cleared for a home Survey in on-line documents. Below is a link to the TVA map for zoning for dock permits. It confirms the initial approval for a dock up to 1800 square feet and does not have to meet the 50' setback requirement from neighbors property. Application Instructions: https://www.tva.com/environment/shoreline-construction-permits/application-instructions new owner needs to re-apply after closing

Monthly Payment Calculator



Realtracs Solutions logoProperties marked with the IDX logo are provided courtesy of the RealTracs Internet Data Exchange Program. Some or all of the listings may not belong to the firm whose website is being visited (DeSelms Team Zeitlin Sotheby’s International Realty, 615-550-5565). IDX information © 2026 MTRMLS, Inc. Information is believed to be accurate but not guaranteed by the MLS or DeSelms Team Zeitlin Sotheby’s International Realty. IDX information is provided exclusively for consumers' personal, non-commercial use and may not be used for any purpose other than to identify prospective properties consumers may be interested in purchasing. Data last updated 2026-03-10T11:07:16.26.

Based on information submitted to the MLS GRID as of 2026-03-10T11:07:16.26. All data is obtained from various sources and may not have been verified by broker or MLS GRID. Supplied Open House Information is subject to change without notice. All information should be independently reviewed and verified for accuracy. Properties may or may not be listed by the office/agent presenting the information.
Click here for MLS GRID DMCA Notice
www.deselmsrealestate.com/homes/160022127
Print Image

13316 Bellacoola Road Soddy Daisy, TN 37379

  • Price: $247,900
  • Status: Under Contract - Showing
  • On Site: 398 Days
  • Updated: 48 min ago
  • MLS #: RTC2786684
0
Beds
0
Baths
0
½ Baths
0.97
Acres
Neighborhood:
Harbor Haven
County:
Hamilton
Elementary School:
North Hamilton County Elementary School
Middle School:
Soddy Daisy Middle School
High School:
Soddy Daisy High School
Property Description
Last Lot in lake-front Harbor Haven now available. Already approved for at least a 3 Bedroom Home or more. 100' by 100' space already cleared for a home Survey in on-line documents. Below is a link to the TVA map for zoning for dock permits. It confirms the initial approval for a dock up to 1800 square feet and does not have to meet the 50' setback requirement from neighbors property. Application Instructions: https://www.tva.com/environment/shoreline-construction-permits/application-instructions new owner needs to re-apply after closing
Exterior Features

Lot Features SlopedOther Lot Size Dimensions 143.93 X 569.26 Parking Total 0 Road Frontage Type County Road Road Surface Type Paved Topography SlopedOther View Water View YN Yes Waterfront YN No

Interior Features

Cooling YN No Heating YN No

Property Features

Association YN No Buyer Financing OtherConventional Contingent Date 2026-02-23 Lot Size Area 0.97 Pool Private YN No Property Attached YN No Senior Community YN No Tax Annual Amount 839 Water Source Public Zoning R-1

Realtracs Solutions logo Offered by Greater Downtown Realty dba Keller Williams Realty: . Copyright 2026 RealTracs, Inc. Information Is Believed To Be Accurate But Not Guaranteed. Listings courtesy of Realtracs MLS as distributed by MLS GRID.


Realtracs Solutions logoProperties marked with the IDX logo are provided courtesy of the RealTracs Internet Data Exchange Program. Some or all of the listings may not belong to the firm whose website is being visited (DeSelms Team Zeitlin Sotheby’s International Realty, 615-550-5565). IDX information © 2026 MTRMLS, Inc. Information is believed to be accurate but not guaranteed by the MLS or DeSelms Team Zeitlin Sotheby’s International Realty. IDX information is provided exclusively for consumers' personal, non-commercial use and may not be used for any purpose other than to identify prospective properties consumers may be interested in purchasing. Data last updated 2026-03-10T11:07:16.26.

Based on information submitted to the MLS GRID as of 2026-03-10T11:07:16.26. All data is obtained from various sources and may not have been verified by broker or MLS GRID. Supplied Open House Information is subject to change without notice. All information should be independently reviewed and verified for accuracy. Properties may or may not be listed by the office/agent presenting the information.
Click here for MLS GRID DMCA Notice
 
https://bt-photos.global.ssl.fastly.net/nashville/orig_boomver_1_RTC2786684-1.jpg https://bt-photos.global.ssl.fastly.net/nashville/orig_boomver_1_RTC2786684-1.jpg https://bt-photos.global.ssl.fastly.net/nashville/orig_boomver_1_RTC2786684-1.jpg
Logo
DeSelms Team Zeitlin Sotheby’s International Realty
4301 Hillsboro Rd Ste. 100
Nashville TN, 37215